| Уникальный номер объявления: | 71204 |
| Тип сделки: | Продажа |
| Тип недвижимости: | Новостройки |
| Ближайшие станции метро: | Чкаловская |
| Адрес: | Россия, Свердловская область, Екатеринбург, ул. Комбинатская, 16 |
| Цена: | 3 860 000 руб. Продажа |
| Описание: | • Сдача — 4 кв. 2028
Ленинский р-н, посёлок Совхозный Жилой комплекс проект ревитализации территории в Екатеринбурге. Основная идея проекта создать комьюнити людей, которые наполняют свою жизнь необходимыми ресурсами и энергией, стремятся созидать, вдохновлять и развивать. 17 жилых домов переменной этажности — это «место силы» для жителей, соединенное с комфортом и умными технологиями. Архитектурная концепция первого дома проекта представляет собой замкнутый квартал из семи секций с акцентной башней-доминантой. Фасады оформлены ригельным кирпичом и мокрой штукатуркой светлого оттенка, благодаря природным оттенкам и переменной этажности двор всегда будет наполнен светом. Территория проекта будет условно разделена на 3 зоны: внешне окружение, общественный бульвар и закрытые дворы. Чтобы создать дополнительный зелёный буфер на общественных пространствах будут высажены полноразмерные деревья: березы, яблони разных сортов, иргу, ели, липы и сосны. Во дворах — ели разных пород, березы, липы, боярышник, спирею, можжевельник. Соединяя растения, ландшафтные архитекторы создают всесезонную палитру красок во дворах. Все дворы в проекте круглосуточно находятся под видеонаблюдением. Особое внимание уделили входным зонам с парадными — каждая из них имеет свой дизайн, гармонирующий с внутридворовым пространством. Для домашнего уюта и настроения в зонах ожидания размещены зеркала, растения, абстрактные картины и мягкие диваны — для ожидания курьера или такси. Все входы расположены на уровне пола, чтобы среда была действительно безбарьерной и комфортной для всех жителей. А ещё зайти в парадную можно по биометрии: это удобно, когда заняты руки. Без чего нельзя представить ни один жилой комплекс, так это без широкой торговой галереи. Прямо на первых этажах домов расположатся коммерческие точки: кофейни со свежими булочками и ароматным кофе, овощные лавки, салоны красоты, аптеки, пункты выдачи заказов и много другой полезной инфраструктуры. Всё это для того, чтобы жители могли наслаждаться комфортом, не уходя далеко от дома. Массинг фасаду придадут разноуровневые террасы, французские балконы и панорамное угловое остекление. Архитектурная подсветка акцентно выделяет квартал в локации. Для первого дома в проекте спроектирован восьмиэтажный наземный паркинг с тёплым переходом из парадной на 499 машиномест. Также будут и гостевые открытые парковки, вынесенные за пределы дворового пространства. Личный транспорт всегда будет под защитой и видеонаблюдением — переживать о его сохранности не придётся. Все планировочные решения функциональны и удобны. Просторные квартиры с мастер-спальней и лоджией, видовые квартиры с террасой на последних этажах. Разноэтажные секции, видовые квартиры, уютный закрытый двор, с игровыми площадками для детей всех возрастов. |
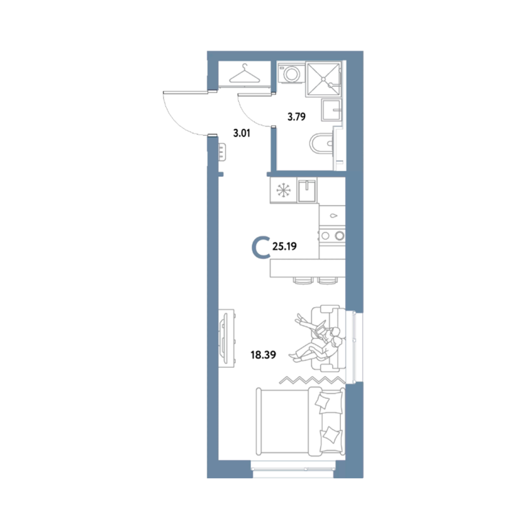
| Количество комнат: | 1 |
| Этаж: | 3 этаж 13 этажного дома |
| Общая площадь: | 25.19 м2 |
| Телефон владельца: | Показать телефон |
| Тип квартиры: | Студии |
| Студия: | Да |
| Апартаменты: | Нет |
Кредитный калькулятор
Ежемесячный платеж: руб.
Переплата: руб.
- 1
- 25/25
- 37.4 м2
- 2
- 30/31
- 59.2 м2
- 2
- 31/31
- 59.1 м2
- 1
- 31/31
- 35.1 м2
- 1
- 22/31
- 3
- 20/31
- 1
- 4/31
- 2
- 1/8

