| Уникальный номер объявления: | 71046 |
| Тип сделки: | Продажа |
| Тип недвижимости: | Новостройки |
| Ближайшие станции метро: | Проспект Космонавтов |
| Адрес: | Россия, Свердловская область, Екатеринбург, ул. Шефская, 22А |
| Цена: | 5 450 000 руб. Продажа |
| Описание: | • Сдача — 4 кв. 2025
Орджоникидзевский р-н, Эльмаш мкр Жилой комплекс «Страна.Энтузиастов» представляет собой комплексную застройку, состоящую из блочных зданий. Комфорт и безопасность Машиноместа для хозяев предусмотрены в надземном паркинге, а для гостей — по периметру комплекса. Крышу парковки решили сделать частью двора, поэтому здесь располагается лаунж-зона с лежаками для отдыха жителей. Окружение и досуг Рядом — метро, трамвайные линии, несколько автобусных остановок, действующие школы и детские сады, спортивная инфраструктура, ТЦ Veer Mall. На территории «Страны.Энтузиастов» появится зелёная городская гостиная, которая объединит жителей комплекса и их соседей. А значимой социальной особенностью проекта станет собственный муниципальный детский сад на 100 мест. Благоустройство Приватный двор только для жителей окружен зеленью, которая будет цвести весь год. В тёплое время распускаются деревья, кустарники, цветы и травы, а зимой глаз порадуют пушистые ели. Двор разделили на несколько зон: игровые площадки для детей разных возрастов, релакс-пространства с гамаками и подвесными креслами, спортивная зона с воркаут и настольным теннисом и общественные огороды, где можно выращивать цветы или любимую зелень. |
| Количество комнат: | 1 |
| Этаж: | 24 этаж 24 этажного дома |
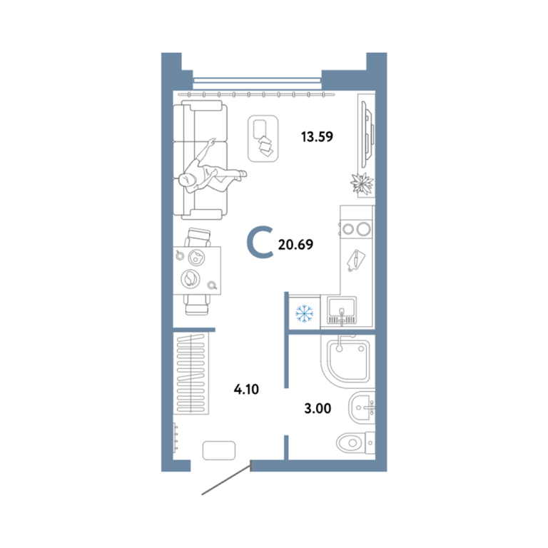
| Общая площадь: | 20.69 м2 |
| Телефон владельца: | Показать телефон |
| Тип квартиры: | Студии |
| Студия: | Да |
| Апартаменты: | Нет |
Кредитный калькулятор
Ежемесячный платеж: руб.
Переплата: руб.
- 1
- 22/31
- 3
- 20/31
- 1
- 4/31
- 2
- 1/8
- 1
- 31/31
- 35.1 м2
- 2
- 31/31
- 59.1 м2
- 2
- 30/31
- 59.2 м2
- 1
- 25/25
- 37.4 м2

