| Уникальный номер объявления: | 72658 |
| Тип сделки: | Продажа |
| Тип недвижимости: | Новостройки |
| Ближайшие станции метро: | Проспект Космонавтов |
| Адрес: | Россия, Свердловская область, Екатеринбург, ул. Стачек, стр. 68 |
| Цена: | 9 120 000 руб. Продажа |
| Описание: | • Сдача — 3 кв. 2027
Орджоникидзевский р-н, Эльмаш мкр Жилой комплекс расположен в Орджоникидзевском районе в квадрате улиц Стачек, Войкова, Каширской и переулка Ритслянда. Он находится на тихой территории между крупными городскими магистралями: проспектом Космонавтов и улицей Старых Большевиков. Квартал состоит из многоэтажных домов с тремя башнями по периметру и шестью урбан-виллами внутри. Фасады, сочетающие светлую и темную штукатурку, акцентируют панели теплых оттенков «под дерево». Ритм зданий создается за счет чередования окон разных размеров, прогулочных террас и лоджий. Ближайшая станция метро Проспект Космонавтов находится в 10 минутах ходьбы и связывает жилой район с центром Екатеринбурга. Также через район проходят автобусные и троллейбусные маршруты. На машине по проспекту Космонавтов можно добраться до центра города за 15 минут. Помимо транспортной доступности район имеет развитую инфраструктуру: рядом работают детские сады, школы, лицей и гимназии. Вокруг квартала расположены торговые центры, ТК «Омега», магазины и спортивный клуб. Квартал спроектирован голландским архитектурным бюро. У квартир выполнена предчистовая отделка. |
| Количество комнат: | 1 |
| Этаж: | 6 этаж 8 этажного дома |
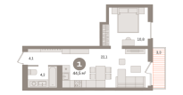
| Общая площадь: | 44.5 м2 |
| Телефон владельца: | Показать телефон |
| Тип квартиры: | 1-комнатные |
| Студия: | Нет |
| Апартаменты: | Нет |
Кредитный калькулятор
Ежемесячный платеж: руб.
Переплата: руб.
- 1
- 22/31
- 3
- 20/31
- 1
- 4/31
- 2
- 1/8
- 1
- 31/31
- 35.1 м2
- 2
- 31/31
- 59.1 м2
- 2
- 30/31
- 59.2 м2
- 1
- 25/25
- 37.4 м2

