| Уникальный номер объявления: | 70105 |
| Тип сделки: | Продажа |
| Тип недвижимости: | Новостройки |
| Ближайшие станции метро: | Уралмаш |
| Адрес: | Россия, Свердловская область, Екатеринбург, ул. Авангардная, 6 стр. |
| Цена: | 11 100 000 руб. Продажа |
| Описание: | • Сдача – 4 кв. 2027
Орджоникидзевский р-н, Уралмаш мкр Современные кварталы европейского типа в 5 минутах пешком от метро «Уралмаш». Садик в глубине квартала. Магазины и офисы у дома. Здание с кафе и благоустроенная площадь рядом с ним. Паркинг и уютный закрытый двор. Двор 9-й очереди — уютный, зелёный, подходящий для отдыха детей и взрослых. В тени больших деревьев появятся садовые кресла, которые можно двигать, а также детский городок и песочница с тентом. Визуальное разнообразие в облик двора внесут ландшафтные насыпи. Вход на уровне земли и углублённый тамбур позволяют легко и самостоятельно завезти в дом коляску или велосипед. Вход имеет 3 степени грязезащиты, чтобы сохранять чистоту как можно дольше. Ответить на звонок домофона можно как из дома (при наличии вызывной панели), так и со смартфона. В приложении есть возможность не только открыть дверь, но и посмотреть видео с панели домофона, поговорить с гостем. В доме установлены напорные промывные фильтры для удаления механических примесей из водопроводной воды: ржавчина, тяжёлые металлы, нерастворимые частицы не пройдут. Система оборудована возможностью промывки, а значит, нет необходимости часто менять картриджи. Благодаря специально разработанному для облицовки фасада паттерну у дома будет собственное узнаваемое «лицо». Эстетический эффект усиливают декоративные металлические решётки под окнами, стеклянные балконы, а также окна с ламинацией со стороны фасада. Рядом с домом вдоль улицы Авангардная вытянутся одноэтажные здания коммерческого назначения в стиле «лофт». По умолчанию, квартиры сдаются с чистовой отделкой: износостойким ламинатом на полу, качественными белыми обоями на стенах, покрашенным потолком и межкомнатными дверями. Есть возможность выбрать отделку «под чистовую» или улучшенную отделку. Окна, которые занимают до 70% стены, наполняют комнаты солнечным светом. Технология крепления оконного блока и его герметичность позволяют избежать теплопотерь и добиться «эффекта немого кино». Жилые кварталы в центре Уралмаша — очевидный выбор для тех, кто хочет расти вместе с любимым районом. Пожалуй, здесь сложились самые комфортные условия для жизни в Екатеринбурге. Метро всего в двух шагах, летний парк «Уралмаш», хорошие школы и детские сады в непосредственной близости, а также магазины, кинотеатры, кафе и вся необходимая инфраструктура. |
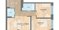
| Количество комнат: | 2 |
| Этаж: | 4 этаж 25 этажного дома |
| Общая площадь: | 66.76 м2 |
| Телефон владельца: | Показать телефон |
| Тип квартиры: | 2-комнатные |
| Студия: | Нет |
| Апартаменты: | Нет |
Кредитный калькулятор
Ежемесячный платеж: руб.
Переплата: руб.
- 1
- 22/31
- 3
- 20/31
- 1
- 4/31
- 2
- 1/8
- 1
- 31/31
- 35.1 м2
- 2
- 31/31
- 59.1 м2
- 2
- 30/31
- 59.2 м2
- 1
- 25/25
- 37.4 м2

