| Уникальный номер объявления: | 71527 |
| Тип сделки: | Продажа |
| Тип недвижимости: | Новостройки |
| Ближайшие станции метро: | Площадь 1905 года |
| Адрес: | Россия, Свердловская область, Екатеринбург, ул. Крауля, 194 |
| Цена: | 10 628 000 руб. Продажа |
| Описание: | • Сдача — 2 кв. 2028
Верх-Исетский р-н, ВИЗ мкр Риверсайд – жилой проект в Верх-Исетском районе Екатеринбурга, между улицами Татищева и Крауля. ВИЗ – один из самых перспективных и наиболее востребованных районов города. До центра – всего 15 минут на машине, до остановок общественного транспорта – пару шагов неспешным шагом. Квартал расположен вблизи Верх-Исетского пруда. Это лучшая локация района с новой инфраструктурой. В шаговой доступности – яхт-клуб, пляж, несколько школ, детских садов, спортивный центр «Верх-Исетский», стадион «Екатеринбург-Арена», развитая сеть street-retail: супермаркеты, рестораны, аптеки, салоны красоты, барбершопы и др. Курортный район, комфортная разноуровневая высотность с прекрасными видовыми характеристиками на акваторию, стильные фасады из декоративной штукатурки природных оттенков, дворы-сады с обилием зелени и продуманным ландшафтным дизайном, лобби с зонами ожидания, подземный паркинг. В Риверсайд представлено большое разнообразие планировочных решений: евроформаты, мастер-спальни с ванными и гардеробными, коллекционные квартиры с террасами на первых этажах, эксклюзивные варианты на верхних этажах с захватывающим видом на акваторию и живописные панорамы города. |
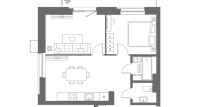
| Количество комнат: | 2 |
| Этаж: | 2 этаж 8 этажного дома |
| Общая площадь: | 60.61 м2 |
| Телефон владельца: | Показать телефон |
| Тип квартиры: | 2-комнатные |
| Студия: | Нет |
| Апартаменты: | Нет |
Кредитный калькулятор
Ежемесячный платеж: руб.
Переплата: руб.
- 1
- 22/31
- 3
- 20/31
- 1
- 4/31
- 2
- 1/8
- 1
- 31/31
- 35.1 м2
- 2
- 31/31
- 59.1 м2
- 2
- 30/31
- 59.2 м2
- 1
- 25/25
- 37.4 м2

