| Уникальный номер объявления: | 71835 |
| Тип сделки: | Продажа |
| Тип недвижимости: | Новостройки |
| Ближайшие станции метро: | Чкаловская |
| Адрес: | Россия, Свердловская область, Екатеринбург, ул. Академика Ландау, 5 |
| Цена: | 6 640 000 руб. Продажа |
| Описание: | • Сдача — 1 кв. 2026
Академический р-н «РАЗУМ в Академическом» — это жилой комплекс из 7 домов переменной этажности от федерального девелопера «РАЗУМ» с 12-летним опытом создания жилых проектов. Дома от 12 до 24 этажей расположены в границах ул. Амундсена. Рядом удобный выезд на ЕКАД. В пешей доступности: • 6 школ; Главная особенность проекта — угловое остекление, которое составляет 22% всей площади. Окна в квартирах установлены в 60 см от пола. Увеличенная площадь остекления помогает снизить затраты на энергоресурсы и создаёт уют в квартире. Сердце жилого комплекса — приватный двор-парк с игровыми комплексами, тренажерами, площадками. «Городские грядки» — новое решение благоустройства, где выращиваются ароматные травы или цветы. За пределами комплекса есть прогулочная зона с эко-тропой с вдохновляющими надписями. Прогулки по эко-тропе — это променады наедине с природой. «РАЗУМ в Академическом» — это:
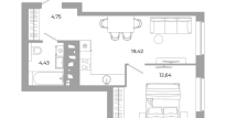
В проекте 25 планировочных решений: от уютных студий от 21,51 м² до квартир с тремя спальнями и кухней-гостиной до 66,58 м² с функциональным разделением на гостевую и приватные зоны.
|
| Количество комнат: | 1 |
| Этаж: | 6 этаж 24 этажного дома |
| Общая площадь: | 41.24 м2 |
| Телефон владельца: | Показать телефон |
| Тип квартиры: | 1-комнатные |
| Студия: | Нет |
| Апартаменты: | Нет |
Кредитный калькулятор
Ежемесячный платеж: руб.
Переплата: руб.
- 2
- 30/31
- 59.2 м2
- 2
- 31/31
- 59.1 м2
- 1
- 31/31
- 35.1 м2
- 1
- 25/25
- 37.4 м2
- 1
- 22/31
- 3
- 20/31
- 1
- 4/31
- 2
- 1/8

