| Уникальный номер объявления: | 71744 |
| Тип сделки: | Продажа |
| Тип недвижимости: | Новостройки |
| Ближайшие станции метро: | Проспект Космонавтов |
| Адрес: | Россия, Свердловская область, Екатеринбург, ул. Бакинских комиссаров, 33А |
| Цена: | 6 431 400 руб. Продажа |
| Описание: | • Сдача – 1 кв. 2027
Орджоникидзевский р-н, Уралмаш мкр ЖК «Парк Победы» расположен в Орджоникидзевском районе, мкр Уралмаш, в квадрате улиц Бакинских Комиссаров, Кировградской, Калинина и Соснового переулка. «Парк Победы» состоит из трёх многосекционных домов переменной этажности, подземного паркинга и коммерческих помещений. Секции домов образуют закрытые дворы, которые объединены арками. На детских площадках элементы игрового оборудования и благоустройства делаем из дерева или металла — эти материалы экологичнее пластика, надёжнее и долговечнее. Для деревянных элементов используем лиственницу — её древесина крепкая и устойчива к влаге. Во дворе комплекса «Парк Победы» двухуровневое освещение — высокие фонари и декоративная подсветка деревьев и кустов. По периметру организовано видеонаблюдение. Камеры установлены так, чтобы просматривался весь двор и входы в дом, поэтому на территории дома всегда безопасно. Первый дом сдан и заселён. Секции второго дома достроят в 2027 году. Отделка квартир – предчистовая. Застройщик выполнил разводку коммуникаций и подготовку к отделке. |
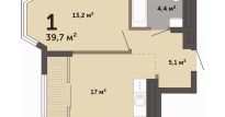
| Количество комнат: | 1 |
| Этаж: | 10 этаж 23 этажного дома |
| Общая площадь: | 39.7 м2 |
| Телефон владельца: | Показать телефон |
| Тип квартиры: | 1-комнатные |
| Студия: | Нет |
| Апартаменты: | Нет |
Кредитный калькулятор
Ежемесячный платеж: руб.
Переплата: руб.
- 1
- 22/31
- 3
- 20/31
- 1
- 4/31
- 2
- 1/8
- 1
- 31/31
- 35.1 м2
- 2
- 31/31
- 59.1 м2
- 2
- 30/31
- 59.2 м2
- 1
- 25/25
- 37.4 м2

